161 Third Street
Baton Rouge, LA 70801
225.924.7206
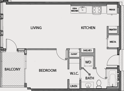
UNIT 301
ONE BEDROOM + DEN | SF - 801
This one bedroom + den apartment is a spacious 801sf with balcony. Walk-in closet, large entry way, stainless appliances including washer & dryer are just some of the amenities.
UNIT 302
ONE BEDROOM | SF - 829
A unique corner 829 sf apartment, this unit overlooks Convention Street with a wrap-around balcony. Large walk-in closet, stainless appliances including washer & dryer are just some of the amenities.
UNIT 303
ONE BEDROOM | SF - 722
This one bedroom unit is 722 sf including a private balcony overlooking Convention Street. Walk-in closet, large entry way, stainless appliances including washer & dryer are just some of the amenities.
UNIT 304
ONE BEDROOM | SF - 611
This one bedroom unit is 611 sf including a private balcony overlooking Convention Street. Walk-in closet, large entry way, stainless appliances including washer & dryer are just some of the amenities.
UNIT 305
ONE BEDROOM | SF - 746
Spacious 746 sf in this one bedroom apartment including balcony that overlooks Convention Street. Walk-in closet, large entry way, stainless appliances including washer & dryer are just some of the amenities.
UNIT 306
TWO BEDROOM | SF - 1081
This premium two bedroom corner unit has a wrap around balcony overlooking the popular arts & entertainment district at Third and Convention St. Stainless appliances, washer & dryer and walk-in closets are just some of the amenities.
UNIT 307
ONE BEDROOM + DEN | SF - 783
Private balcony overlooking the Arts & Entertainment District on Third Street. 783 sf, one bedroom + den corner unit offers walk-in closets, stainless appliances including washer & dryer are just some of the amenities.